Architectural Plans

Conceptual and Schematic Design

We begin each architectural project by capturing the client’s vision through conceptual and schematic drafting. This early phase focuses on spatial organization, massing, and site relationships, enabling rapid exploration of design options. Using advanced CAD and BIM software, we create flexible models that allow stakeholders to visualize form and function, ensuring the design meets both aesthetic goals and regulatory constraints.

 Conceptual and Schematic Design

Detailed Floor Plans, Elevations, and Sections

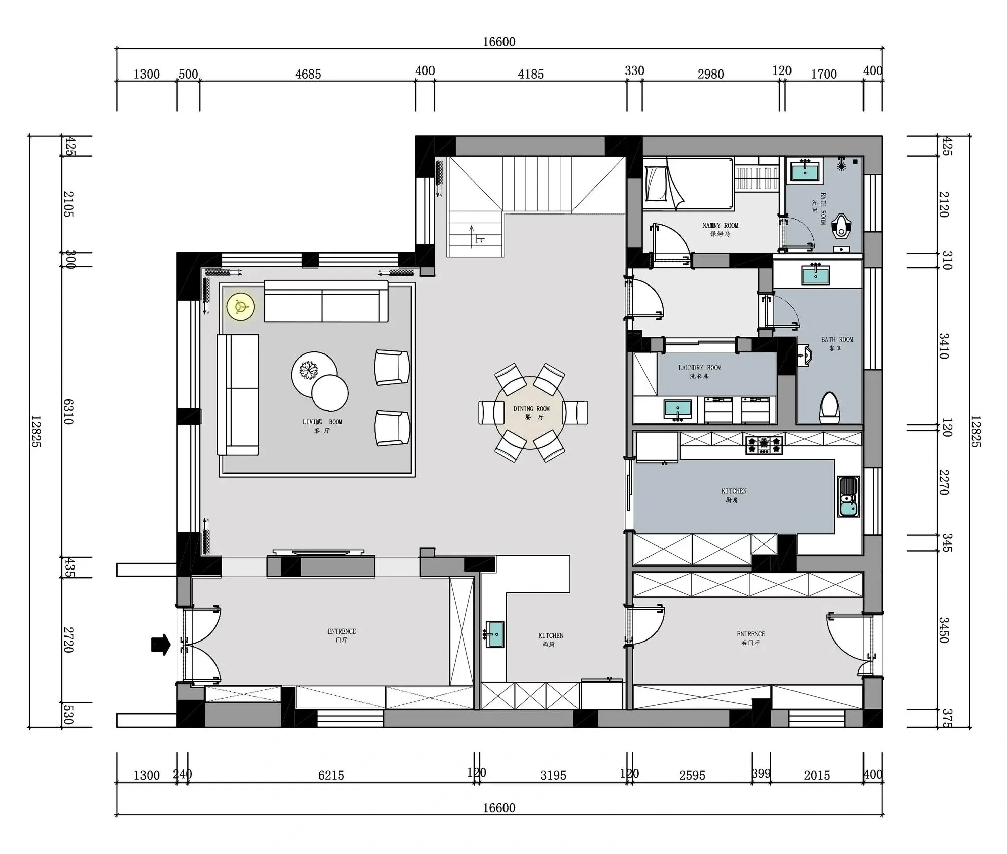
Our team develops comprehensive architectural drawings that specify room layouts, circulation paths, façade treatments, and vertical cross-sections. These documents provide essential information for contractors and engineers, illustrating how spaces connect and how the building interacts with its environment. Attention to detail ensures that every element aligns with local and international building codes.

Floor Plans

Construction Documentation

We prepare exhaustive construction documents that serve as the blueprint for building execution. These include annotated plans, material specifications, schedules, and detailed sections that clarify construction methods and finishes. Our documentation minimizes ambiguity, supports permit approvals, and facilitates efficient bidding and construction processes.

 Construction Documentation

3D Modeling and Visualization

To enhance understanding and communication, we produce realistic 3D models and renderings. These visual tools allow clients and project teams to experience the design virtually, identify potential issues early, and make informed decisions that improve project outcomes and stakeholder satisfaction.

3D Modeling and Visualization